fbpx

Ciudadela Santa Barbara

  • Ubicación:

    Palmira

  • Clima:

    Templado

  • Área:

    250 hectáreas

  • Unidades:

    14.000

  • Cliente:

    Gamatelo S.A

Sistema descentralizado

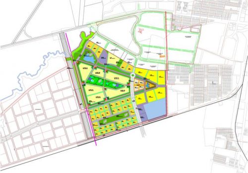
Objetivo: Diseño y planificación del Plan Maestro (250 hectáreas) + el desarrollo de Plan Parcial (1 fase) de 30 has, basado en el desarrollo sostenible del proyecto en agua, energía y residuos. Hoy el proyecto ya tiene desarrollado 1.500 unidades y el centro comercial siendo el área de mayor desarrollo de la ciudad de Palmira.

UBICACIÓN

  • (601) 695 2248
  • Calle 93 # 15-59, oficina 301
  • Bogotá, Colombia

© 2020 VIC. Todos los derechos reservados.